TriBeCa Apartment (1995)





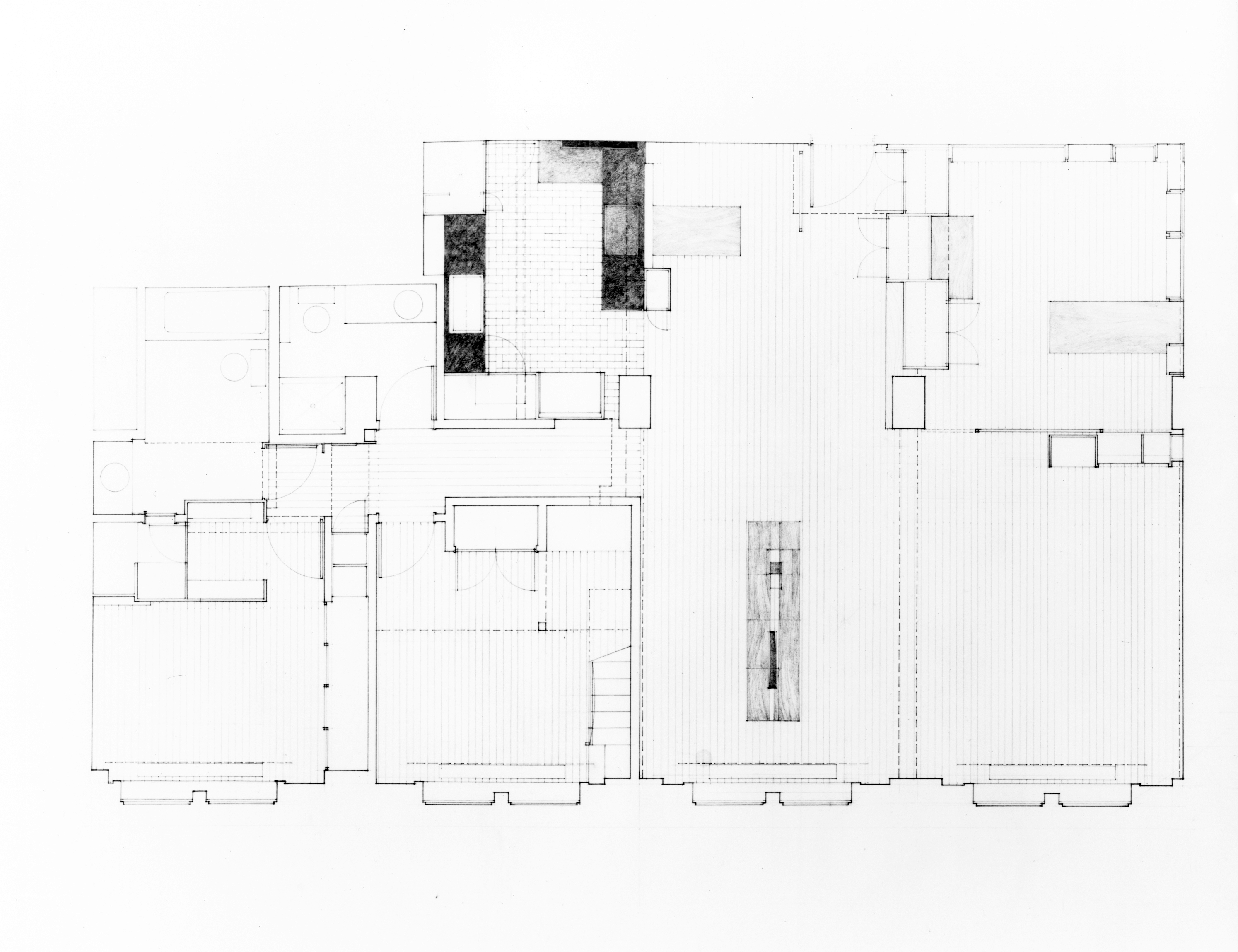
The apartment was designed for an art critic and her young child. Situated thirty feet from the next building, the challenge was to invest the space with a sense of expanse. A focus on openings and views allowed a strategy of framing and reframing. The length of the hallway was accentuated by gradually narrowing and shifting its frame. Layering views into adjacent spaces enlarged the sense of volume. The design team was Laura Briggs and Paola Iacucci with assistance from Elizabeth Alford and Jonathan Knowles.


Press:
